AN House 
The project involves the subdivision of a four-room apartment located on the sixth floor of a residential building in Angera, overlooking Lake Maggiore and the Rocca di Angera. 
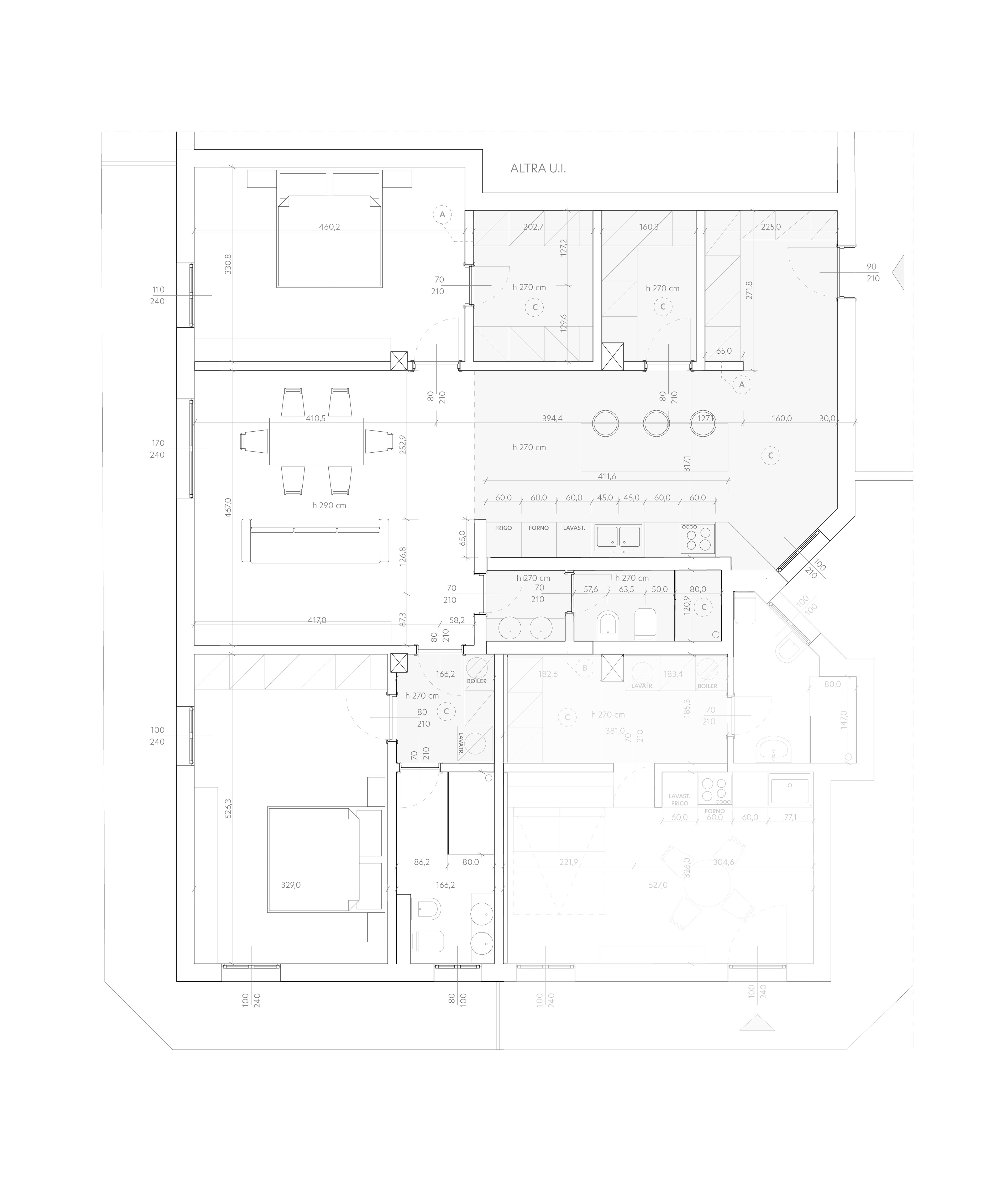
The intervention engages with a dwelling that had remained substantially unchanged since the 1960s, reinterpreting it through a new spatial organization aimed at optimizing the layout and enhancing the long perimeter balcony — a key element in establishing a continuous relationship between interior spaces, landscape, and the urban context of Angera. 
The operation results in two independent units — a three-room apartment and a studio flat — conceived as distinct yet coherent in terms of architectural language, materials, and design approach. 
The three-room - AN House - unit is organized around a new living area that gradually reveals itself from a balanced and elegant entrance. From here, an open-plan space unfolds, where a large kitchen peninsula acts as both spatial threshold and visual focal point, directing the gaze toward the living area and the exterior, with the Rocca di Angera as a landscape backdrop. 
From this central core, the two sleeping areas branch out symmetrically on opposite sides of the apartment, each served by its own bathroom and ancillary spaces. 
The layout is designed to ensure functional clarity, privacy, and spatial continuity. 
The renovation combines material elegance and simplicity with high distributive efficiency, shaping everyday spaces of quality in which natural light and the connection with the perimeter balcony become integral parts of the living experience. 
Photography @Andrea Ceriani
Back to Top